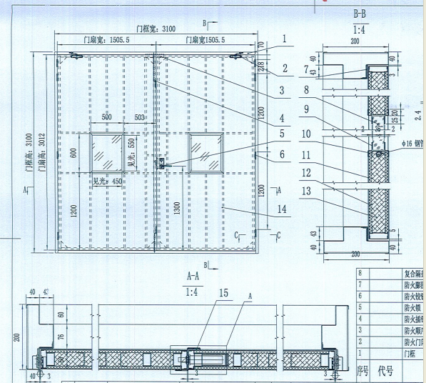
超大防火門, 防火門根據生產制造材料的不同,可分為木質防火門,鋼質防火門,不銹鋼防火門,防火玻璃門、防火工藝門等。而作為大規格門洞口的用門使用,鋼質防火門無非是較理想的選擇。 鋼質超大防火門在選材及制造工藝方面均達到和超過國家標準,如標準中要求門面、門框、鉸鏈鋼板厚度分別為0.8mm,1.2mm和3.0mm;實測結果是1.2mm,1.6mm及4.5mm,遠高于規范要求,配備國際頂級門體五金件,較大程度保障大尺寸防火門安全性、穩定性。 產品采用先進噴涂工藝進行表面處理,自然均勻、美觀大方,品牌防火五金(防火鎖、閉門器、順序器、鉸鏈、插銷)防火膨脹條及防火玻璃組成,其耐火性能全部符合國家標準。門體尺寸可規格客戶需求定身制作,較大可達到3100*3100mm,充分尊重用戶意愿。性能達到國家標準GB12955-2008要求的穩定性、完整性。      超大防火門廠家相關推薦: 超大防火門 非標防火門 2.4米超大防火門 2.5米超大防火門 2.6米超大防火門 2.7米超大防火門 2.8米超大防火門 3米超大防火門 3.3米超大防火門 3.6米超大防火門 3.9米超大防火門 南京拓吉消防設備有限公司 電 話:025-83997899 傳 真:025-56671585 銷 售:18061615050(微信同號) 售 后:15950558388 業務QQ :437181679 郵 箱:njtjxf@163.com 網 址:www.gz-ts.cn ( 2 - 5米全系列防火門產品請點擊登錄拓吉消防官方網站)
|